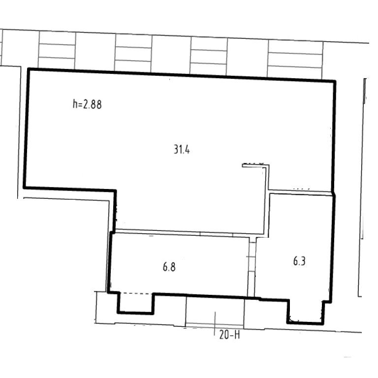
1-комнатная квартира №20Н в Мадонна Бенуа: 44.5 м2, этаж 1

  • План квартиры
  • На этаже

20Н

1-й этаж из 8

1 комнатная

Мадонна Бенуа

1-й корпус,

срок сдачи: IV кв. 2023

Петроградский район,

Малый проспект П.С., 79

ст. метро Петроградская

20,03 млн. 253,95 тыс. 216,73 тыс.

Характеристики

Площадь м2

Общая 44,50

Продаётся элитная 1-комнатная квартира №20Н в Мадонна Бенуа: 44.5 м2, этаж 1 за 20,03 рублей. Срок сдачи запланирован на IV кв. 2023 года. Сам жилой комплекс Мадонна Бенуа находится в удобном месте, у станции метро Петроградская.
Агентство элитной недвижимости LimeEstate поможет купить данную квартиру в ЖК Мадонна Бенуа по выгодным условиям и обеспечит безупречную юридическую чистоту сделки.

Похожие объекты

;