НазадК результатам поиска
Васильевский остров
Корпуса
Адрес Александра Грина бульвар
Срок сдачи IV кв. 2028
Тип дома Кирпично-монолитный
Этажей 17
Квартир в корпусе 330
2
Корпус
660
Квартир
17
Этажей
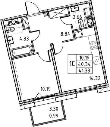
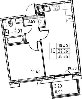
2.87 - 3.47
Высота потолков
предчистовая
Отделка
кирпично-монолитный
Тип
подземный: 99м/м
Паркинг
Заказать обратный звонок
Спасибо за вашу заявку!
Мы свяжемся с вами в ближайшее время.
Бульвар Грина
Преимущества однокомнатных квартир в ЖК Бульвар Грина
Большие окна
Панорамные виды
Квартиры с видом на Финский залив
Высокие потолки
Прогулочная зона
Закрытая территория
Система «интеллектуальный дом»
Развитая инфраструктура
Рядом парк
Сортировка:
цена
площадь
год сдачи
этаж
Ход строительства
2026









