НазадК результатам поиска
Васильевский остров
Адрес Малый В.О. пр. 60
Срок сдачи III кв. 2028
Тип дома Монолитный
Этажей 7-12
Квартир в корпусе
Об объекте
Спасибо за вашу заявку!
Мы свяжемся с вами в ближайшее время.
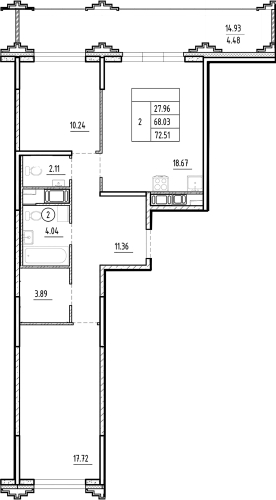
Двухкомнатные квартиры в ЖК Ассамблея
В исторической части города на стыке Малого проспекта и 24 линии В.О. реализуется один из самых ожидаемых проектов ЖК «Ассамблея» — клубный квартал из пяти корпусов. Строительство ведет ГК ПСК.О проекте
Клубный квартал возводится в одной из самых престижных локаций Петербурга, в окружении культурного наследия города. По замыслу девелопера здесь возведут 5 корпусов высотой 7–12 этажей в стиле неомодернизм, который являет собой сочетание лаконичности и функциональности.
Будущие жильцы ЖК «Ассамблея» в СПб смогут выбрать жилье по душе из 907 вариантов: от студии 27–29 м2 до трехкомнатной квартиры 92–106 м2. Проектом предусмотрены планировки с мастер-спальней и кухней-гостиной, с видовой террасой на верхних этажах.
Общественное пространство включает просторное лобби и релакс-зону на антресольном этаже. А также комьюнити-клуб с коворкингом, фитнес-клубом, переговорной и другими опциями ЖК бизнес-класса.-
Инфраструктура
В 10 минутах ходьбы от клубного квартала метро «Горный институт». В 10 минутах на авто — съезд на ЗСД.
В Василеостровском районе мощный образовательный кластер, включающий более ста образовательных учреждений, среди которых языковые школы, гимназии, лицеи и вузы.
Культурный досуг жильцов ЖК «Ассамблея» обеспечит общественное пространство «Севкабель Порт», музей «Эрарта», Дворец Меншикова, Зоологический музей.
Для шопинга поблизости есть магазины, супермаркеты и Василеостровский рынок, для прогулок сад «Василеостровец».
-
Благоустройство
Территория клубного квартала будет недоступна для посторонних. Здесь устроят спортплощадки и зоны отдыха.
Основой ландшафтного дизайна станут «зеленые комнаты» из деревьев-крупномеров и живых изгородей. Под клубным кварталом оборудуют общий паркинг на 660 м/м.
Преимущества двухкомнатных квартир в ЖК Ассамблея
Сортировка:
цена
площадь
год сдачи
этаж













































































































































