НазадК результатам поиска
Лиговский проспект
Адрес Лиговский пр. 240
Срок сдачи IV кв. 2026
Тип дома Кирпично-монолитный
Этажей 13-14
Квартир в корпусе 584
Спасибо за вашу заявку!
Мы свяжемся с вами в ближайшее время.
ЖК Куинджи
Представляем вашему вниманию проект «Куинджи», ЖК от застройщика RBI, комплекс из шести жилых и двух инфраструктурных корпусов. Архитекторы проекта создали гармоничный ансамбль в теплых тонах, искусно объединив игру света и теней. Единый дизайн-код прослеживается в оформлении лобби и пейзажного двора. Среди ключевых особенностей объекта 584 квартиры с чистовой отделкой, муниципальный детский сад, приватный пейзажный парк, откуда приятно любоваться луной и облаками — излюбленными элементами полотен знаменитого русского живописца, в честь которого назван проект. Владельцам недвижимости в ЖК «Куинджи» в СПб будет интересно знать, что в 2024 году их дом завоевал две престижные премии: Urban Awards и Green Property в номинациях «Лучший строящийся ЖК» и «Зеленый дом».Квартирография
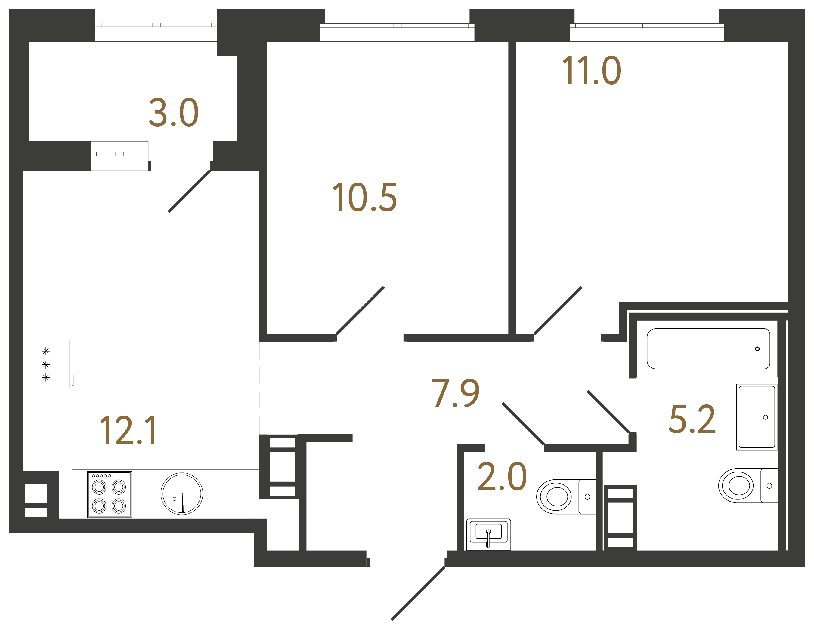
Жилой фонд представлен шестью секциями на 23-125 квартир с классическими и европланировками. В ЖК «Куинджи» купить квартиру можно от 21,8 до 96,2 м2, с мастер-спальней, окном в ванной и французским балконом. Комфорт проживания обеспечивают многослойные теплосберегающие фасады, двухкамерные стеклопакеты, плавающая стяжка пола, усиленная шумоизоляция, диджитализация ключевых процессов. Муниципальный детский сад и двухэтажный лобби с коворкингом занимают две секции, чем значительно облегчают быт и досуг жильцов.-
Инфраструктура
Комплекс строится на участке Лиговского проспекта, относящегося к Фрунзенскому району. Прямо по магистрали можно попасть в Центральный и Московский районы, за 15 минут пешком дойти до метро «Обводный канал», доехать до Пулково за 20 минут. Кроме того, в планах развития петербургского метрополитена запланировано открытие еще одной станции метро «Боровая».
Если вас заинтересовал «Куинджи» ЖК в СПб, цены на квартиры здесь более чем доступные, особенно учитывая исторический статус локации, близость делового и культурного центра, развитую социальную и транспортную инфраструктуру.
В секции №7 жилого комплекса находится детский сад. На Лиговском расположен детский сад №23, средняя школа №153, а также есть другие специализированные и общеобразовательные учреждения на соседних улицах и проспектах.
-
Благоустройство
Внутренней придомовой территории застройщик придал огромное значение, обустроив пространство для удобства и комфортного отдыха всех жильцов.
Для ценителей прекрасного застройщик украсил двор арт-объектами и позаботился об интровертах, спроектировав специальные уголки. Малышей порадует детская площадка из экоматериалов и гигантская песочница. Любители спорта оценят баскетбольную площадку, профессиональные тренажеры и настольный теннис, интеллектуалы — уголок с шахматами. Для жителей дома также предусмотрен круглосуточный консьерж-сервис.
Решив в ЖК «Куинджи» купить квартиру, вы получаете возможность проводить время в уникальном пейзажном парке с настоящим ручьем, любоваться луной с лежака при свете декоративной подсветки, наслаждаться эстетикой расположенных во дворе арт-объектов, чувствовать себя в безопасности на круглосуточно охраняемой закрытой территории.
Преимущества ЖК Куинджи
Сортировка:
цена
площадь
год сдачи
этаж






























































































































































































































































































































































































































































































































































