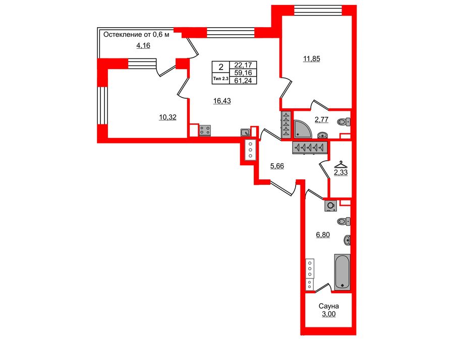
2-комнатная квартира №22 в Setl Ривьера: 59.16 м2, этаж 2

  • План квартиры
  • На этаже

22

2-й этаж из 12

2 комнатная

Setl Ривьера

1.2-й корпус,

срок сдачи: I кв. 2028

Невский район,

наб. Октябрьская

ст. метро Проспект Большевиков

22,80 млн. 310,87 тыс. 265,42 тыс.

Характеристики

Площадь м2

Общая 59,16

Продаётся элитная 2-комнатная квартира №22 в Setl Ривьера: 59.16 м2, этаж 2 за 22,80 рублей. Срок сдачи запланирован на I кв. 2028 года. Сам жилой комплекс Setl Ривьера находится в удобном месте, у станции метро Проспект Большевиков.
Агентство элитной недвижимости LimeEstate поможет купить данную квартиру в ЖК Setl Ривьера по выгодным условиям и обеспечит безупречную юридическую чистоту сделки.

Похожие объекты

;