НазадК результатам поиска
Адрес наб. Октябрьская
Срок сдачи I кв. 2028
Тип дома Кирпично-монолитный
Этажей 12-17
Квартир в корпусе
2
Корпус
2663
Квартир
12-17
Этажей
2.75 - 3
Высота потолков
Готовая
Отделка
кирпично-монолитный
Тип
Подземный: 442 м/м
Паркинг
Заказать обратный звонок
Спасибо за вашу заявку!
Мы свяжемся с вами в ближайшее время.
Setl Ривьера
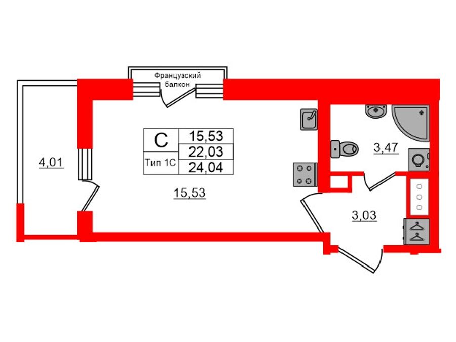
Преимущества однокомнатных квартир в ЖК Setl Ривьера
Панорамные окна
Вид на воду
Квартиры с террасой
Французские балконы
Прогулочная зона
Уютный двор
Развитая инфраструктура
Рядом парк
Сортировка:
цена
площадь
год сдачи
этаж
Ход строительства
2026
2025
















































































































































































